Pierre & Pierre
Paris
Projet : Restructuration de deux appartements dans un immeuble de 1900.
Surface : 49 m² + 35 m²
Budget : 100 000 €
Mission complète
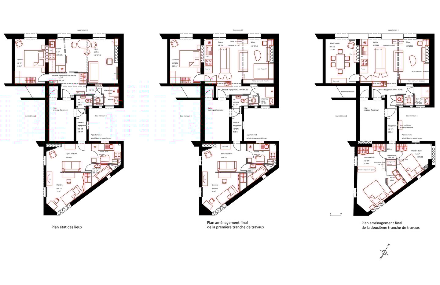
Le défi : Réussir la réunion de 2 appartements mitoyens.
Phase 1 : Rénovation du premier appartement
L’appartement d’origine était mal agencé et vieillissant, avec une cuisine séparée du séjour et des espaces peu optimisés. Pour remédier à cela, toutes les cloisons ont été déposées afin de créer une grande pièce ouverte, où une cuisine moderne et conviviale s'intègre désormais au séjour.
Un immense îlot central fait le lien entre ces deux espaces et offre des rangements ouvrables des deux côtés.
Des aménagements sur mesure ont été créés, intégrant une cuisine fonctionnelle, un bureau, une bibliothèque, un lit escamotable pour les invités, ainsi que des assises.
Dans l’entrée, un meuble sur mesure avec claustra permet de séparer les espaces tout en intégrant des rangements, une penderie, et une assise.
Chaque détail a été pensé pour allier esthétique et fonctionnalité.
Nous avons eu recours aux services de Peggy.
Elle a été présente et à notre écoute du début à la fin des deux projets sur lesquels nous avons travaillé (premier appartement et fusion de ce dernier avec un appartement adjacent)
Lors des phases d'études elle a bien compris nos besoins tout en ayant un regard critique sur la faisabilité ou non de certaines idées en fonction du budget et des contraintes matérielles. Elle a été force de proposition en suggérant plusieurs options d'aménagement avec parfois des idées auxquelles nous n'avions pas pensé (et que souvent nous avons adoptées).
Lors de la conduite des travaux, elle a suivi très régulièrement l'état du chantier en nous tenant au courant des évolutions. Nous avons eu des imprévus et des soucis avec des fournisseurs. Elle a été très proactive pour résoudre les situations et nous a donné de précieux conseils.
Elle est restée très impliquée même après la livraison des travaux pour corriger les derniers petits détails. Elle n'hésite pas à prendre des nouvelles régulièrement pour voir si tout va bien.
Avec le recul nous sommes très content de son travail. En comparant dans mon entourage d'autres projets de rénovation avec d'autres architectes/prestataires beaucoup ont eu des soucis de sérieux ou d'assiduité (trop de chantiers, problèmes d'écoute des besoins ou d'égo...). A chaque fois que des amis font des travaux d'envergure, je leur conseille les services de Peggy. Pierre & Pierre
Phase 2 : Intégration du second appartement
Deux ans plus tard, les clients ont acquis l’appartement mitoyen. L’objectif était de créer un espace nuit tout en conservant les aménagements réalisés dans le premier appartement. Pour cela, le mur mitoyen a été ouvert, et toutes les anciennes structures du second appartement (WC, cuisine, salle de bain, cloisons) ont été démolies. Seul le parquet, d'origine, a été préservé et rénové.
Cet espace a été entièrement dédié aux chambres, avec la création d’une suite parentale comprenant un vaste dressing et une salle d’eau attenante, ainsi qu’une chambre d’amis.
Décoration et harmonisation
La décoration des deux appartements est parti de leur canapé bleu, ils voulaient une ambiance contemporaine et chaleureuse tout en gardant le charme haussmannien par les moulures conservées et complétées.
Cette rénovation en deux temps a permis de créer un appartement unique, à la fois spacieux, fonctionnel, et parfaitement adapté aux besoins des clients.
Cuisine / Photos




Photos de l'appartement 1 avant travaux
Photos de l'appartement 2 avant travaux


Plans
































