Marion & Jean - Georges
Saint Ouen
Projet : Aménagement d'un appartement dans un immeuble construit en 2021.
Surface : 60 m²
Mission conception.
Le défi : Transformer un appartement acheté sur plan.
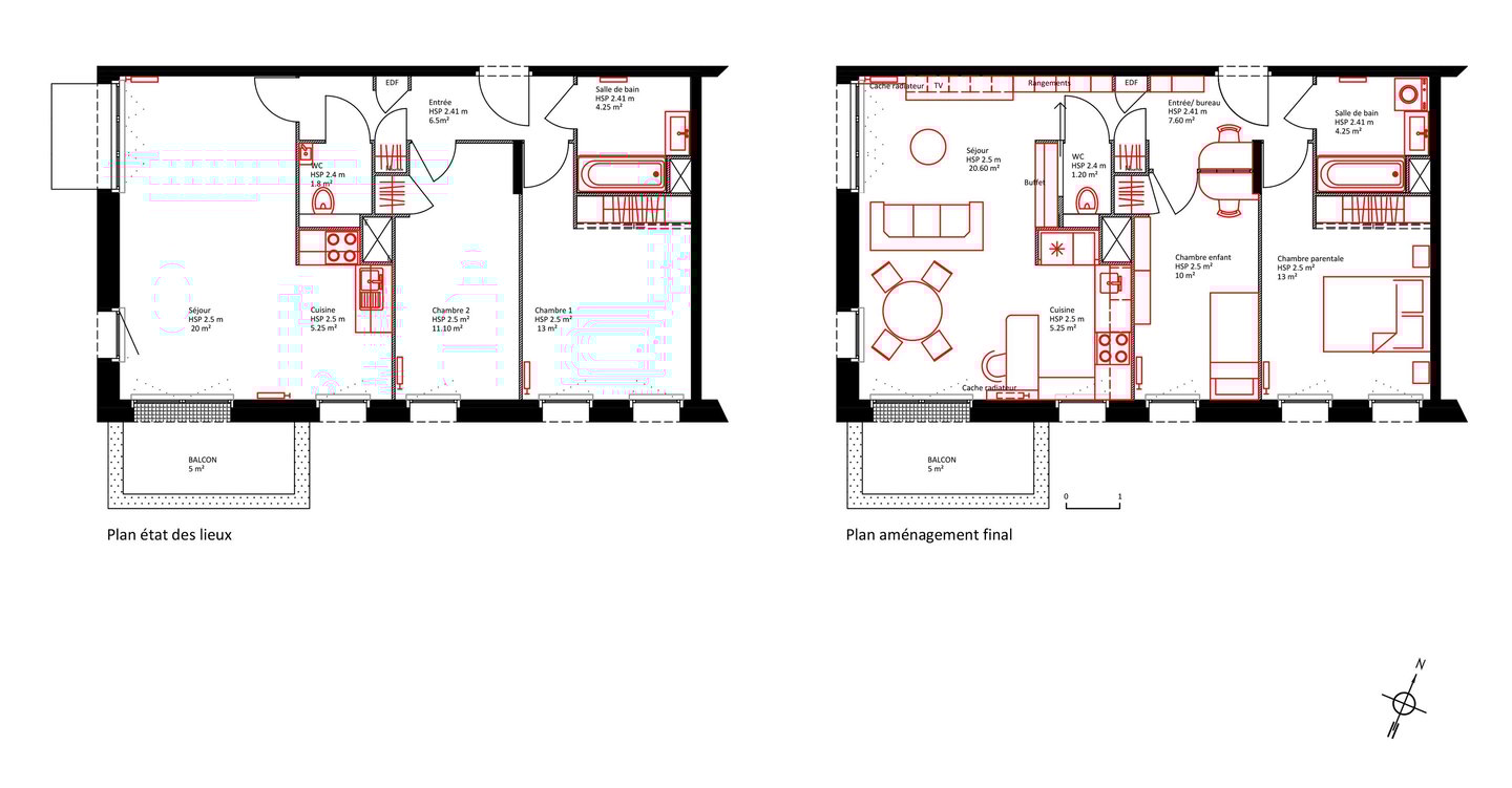
Cet appartement, acheté sur plan par des clients résidant au Canada, devait être adapté à leurs besoins et à leur style avant de devenir leur résidence principale à leur retour en France. L'objectif était de créer un espace à la fois fonctionnel et conforme à leurs goûts personnels.
La cuisine, flambant neuve a été repensée car mais mal conçue. Le frigo a été déplacé pour libérer la fenêtre et la lumière. Elle reste ouverte sur la salle à manger mais est délimitée par un bar, offrant un espace convivial.
Un bureau pour télétravailler, a été ajouté dans l'entrée, surmonté par une verrière pour apporter de la lumière naturelle
Un grand meuble sur mesure longe le mur depuis le séjour jusqu'à l'entrée, intégrant plusieurs fonctions : cache-radiateur, meuble TV, dressing, espace pour déposer les clés, etc.
Les WC ont été réduits pour créer davantage de rangements côté séjour.
Le design mêle des touches de terracotta, noir et blanc pour une harmonie visuelle à travers tout l’appartement.
Les chambres sont stylisées avec des papiers peints panoramiques, ajoutant caractère et personnalité.
Ce projet permettra de transformer cet appartement en un véritable foyer, à la fois esthétique et pratique, en répondant aux besoins quotidiens des clients.




Rendus 3D du projet d'aménagement


























Photos de l'appartement avant travaux


Plans
